Voltar
para lista

Sala Comercial, 1 Dorms à Venda, Pinheiros, 297 m² por R$ 6.409.000,00

Pinheiros - São Paulo - Zona Oeste

R$ 6.409.000,00

1 quarto
- suíte
2 vagas
297 m²
1 quarto
- suíte
2 vagas
297 m²
Atualizado em: 10/11/2025 | Código: 17850

Pinheiros - São Paulo - Zona Oeste

Descrição do Imóvel

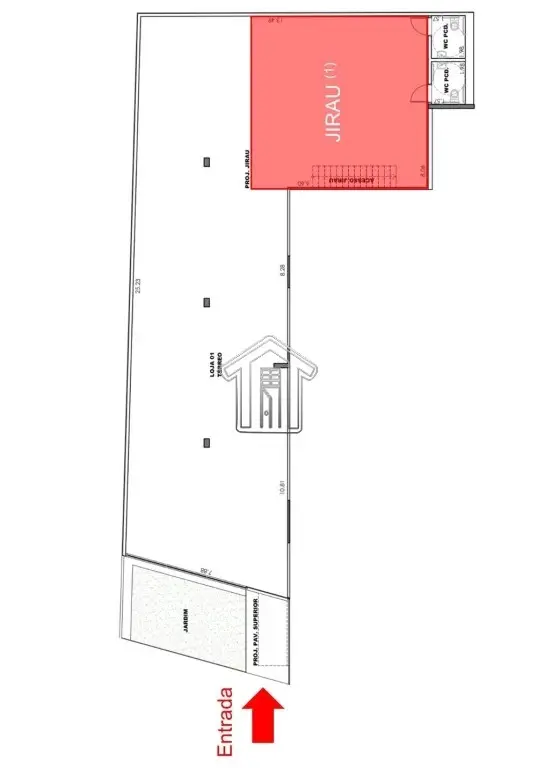
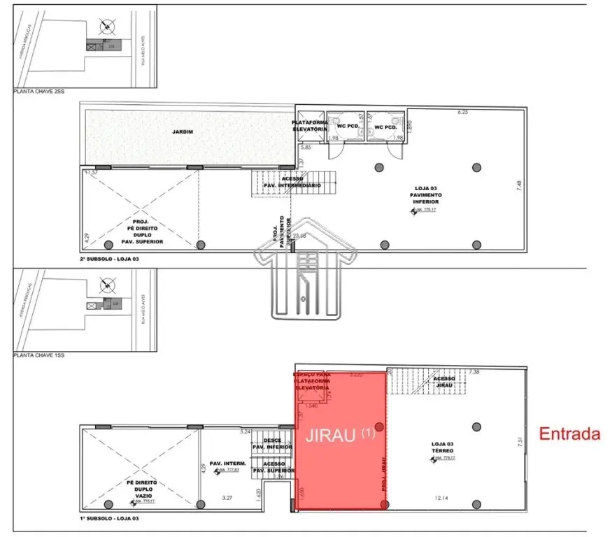
Sala Comercial, 1 Loja(s), 2 vaga(s), 297 m²
Área privativa: Acessibilidade
Piso Entregue em cimento liso desempenado
Parede Concreto aparente e/ou pintura látex, Suvinil, Sherwin Williams e/ou pintura texturizada imitando concreto ou desempenho equivalente
Teto Laje de concreto aparente
Banheiro 2 banheiros entregues com piso em porcelanato, paredes com pintura látex acrílico na cor branco, teto com pintura látex acrílico na cor branco e louças e metais Deca ou de desempenho equivalente
Vagas 2 vagas para utilitários de uso compartilhado entre as lojas, localizadas no 1º subsolo
Ao lado do acesso pela Avenida Rebouças existe um estacionamento disponível para clientes. De acordo com estudo realizado pelo Mackenzie, circulam em média, pela Avenida Rebouças, cerca de 65 mil carros por dia.
O metrô Oscar Freire se encontra a 250 metros do empreendimento (cerca de 4 minutos). Este também é uma das principais linhas de metrô de São Paulo, com cerca de 22.130 pessoas circulando diariamente, de acordo com Via Quatro, em novembro de 2022.
Proximidades: Aeroporto, Centro, Comércio, Faculdade / Universidade, Hospital, Parque, Shopping, Vias de acesso

Todas as informações deste anúncio são fornecidas pelo anunciante.
O Portal ZO Imóvel fica isento de qualquer responsabilidade.
Creci - Procure sempre um corretor credenciado.

Blog do Grupo SP Imóvel

Quer saber mais sobre as vantagens de lazer, esporte, comércio, escolas, etc., no bairro do(a) Pinheiros, Zona Oeste? Clique no(s) link(s) abaixo:
Confira a ampla pesquisa que realizamos sobre financiamento imobiliário em nosso blog. Clique nos links abaixo:
Contate o anunciante


Visualizações do imóvel
57 pessoas visualizaram esse imóvel recentemente
CRECI: 71.831-F

Gigantte Imóveis


Ver telefone e
dados do anunciante
(11) 9475...
(11) 94757-3349
Contate o anunciante
Código do imóvel:
17850
Ao ligar, diga que viu este
anúncio no Portal ZO Imóvel
Endereço do anunciante:

Avenida João XXIII, 20
Sala 11 - Vila Gilda - Santo André

Anúncios encontrados 621 anúncios encontrados
Tempo de cadastro da imobiliária Desde junho de 2012
Contate o anunciante